2025.1 CALLE AVE MARIA No 18 00IB, 28012 Lavapies Madrid
Imágenes de la propiedad
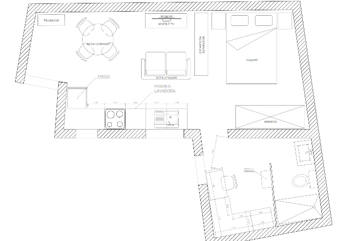
Semana 0. Firma de Compra Venta 17.12.2025

Semana 1. 24.12.2025
- Se instalo la alarma
- Se decidió el tipo de reforma a realizar
- Se solicitaron cotizaciones a reformistas
Semana 2. 31.12.2025
Semana con poca actividad. Se continuo con las negociaciones con 3 reformistas
Semana 3: 7.1.2026
Se terminaron negociaciones y se acepto la propuesta de Ramon Sola. Inicia la reforma la semana del 12 de Enero y concluye 12 semanas después.

Semana 4: 14.1.2026
Se inicia la reforma el 12 de enero con la entrega de llaves al reformista.
Se asigna código para la activación y desactivación de alarma. La fecha de terminación en el contrato es 3.4.2025 establecida con 12 semanas.
Semana 5. 21.1.2026
Se continuo con los derribos
Se cancelo el suministro de gas
Se solicitaron cotizaciones para corregir la humedad
Se negocio servicio de arquitecto para definir detalles de la reforma y home staging
Semana 6. 28.1.2026
Se reviso distribución con Arquitecto
Se vieron alternativas para tratamiento humedad
Semana 7. 4.2.2026
Se acuerda eliminar los muros que separan la habitación original. Se refuerza el equipo de reformistas para avanzar más rápido. Sergio el nuevo jefe de obra visita la obra y evalúa bajantes para considerar la posibilidad de sacar la cocina y separar cocina y baño




Semana 8. 11.2.2026
Se visita Saltoki para ver los materiales y acabados. Se trabaja con arquitecto las opciones de distribución final.
Se acuerda solución para humedad con un costo total de 3400€

Semana 9. 18.2.2026
Se realiza el 2do pago de la reforma y el 50% del pago de la reparación de la humedad. Se recoge el contador de gas, se avanza rápidamente con la reforma.
Se acuerda la distribución final con cocina fuera.

Semana 10. 27.2.2026
Sigue avanzando la reforma, y se compran materiales

Semana 11. 6.3.2026
La reforma sigue avanzando.
Se adquirieron los materiales para baño, pisos y cocina.
Se reviso el mobiliario con el que se hará el Home Staging.
Todo esta avanzando para concluir la reforma antes de la fecha prevista de 3.4.2026
Se avanzará con actividades de preventa.
Semana 12. 13.3.2026
Se adquieren muebles y cocina.
Continua la reforma en tiempo.
LLegan ventanas y se instalan el próximo lunes.
Semana 13 20.3.2026
La reforma esta en sus últimas etapas.
Se muestra los baños, la cocina, pisos, y acabados.
Semana 14. Reforma terminada el 23.3.2026
La obra se concluyo una semana antes de lo comprometido y los resultados son muy satisfactorios
Semanas 14 y 15 Preparación para la venta. 9.4.2026
Se adquirieron muebles para montar el Home Staging y se publico un primer anuncio para medir mercado. Se ha tenido una respuesta muy alta de brokers que quieren hacerse cargo de la venta.
Se terminará de amueblar y se tendrán fotografías profesionales para impulsar la venta.
Etapa de Venta
Hemos seleccionado a la empresa inmobiliaria Vivenda2 para que promueva nuestro piso. Son expertos en la zona y confiamos en que lograrán el máximo precio a corto plazo. Visita nuestro piso en
https://www.vivienda2.com/venta-vivienda-calle-del-ave-maria/10008856/







