Pedro de Teixeira 10 Apt 18
Firma de Arras el 21.1.2026
Primeras semanas de febrero 2026
Captación de inversores.
Proyecto con Arquitecto. Revisión de alternativas
Adelantamos trabajos de diseño mientras la compra venta se firma. Plazo limite firma 21.3.2026
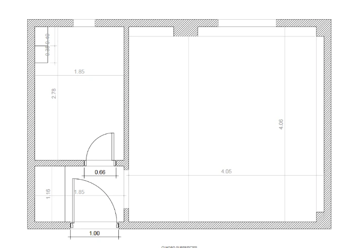
Primer plano es el espacio original
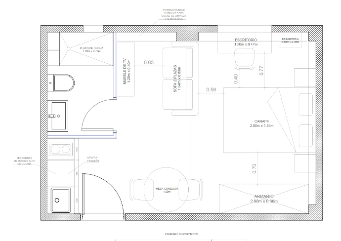
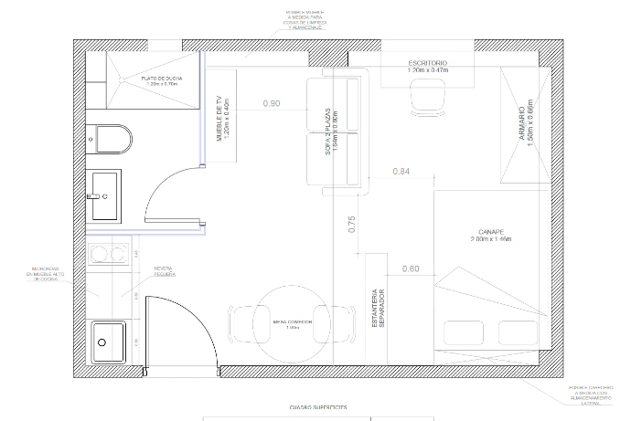
Segundo plano, distribución propuesta
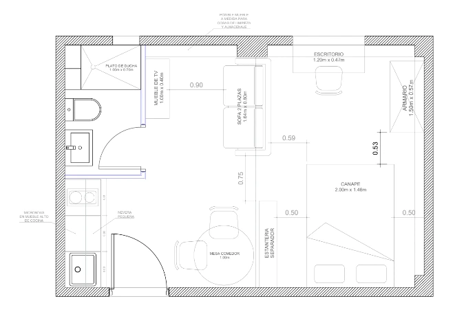
Tercer plano, distribución propuesta


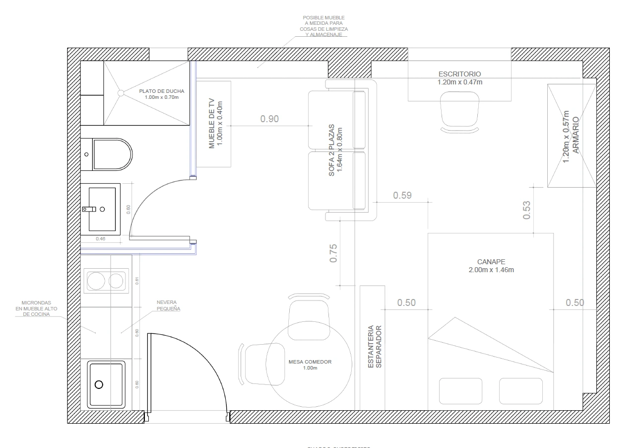
Distribución optimizada
Se equilibra el espacio entre cocina y baño, se logra una cama con mayor privacidad y acceso por 3 costados, circulación libre en todo el piso, un escritorio iluminado, y tranquilo espacio de salón con sillón y tv

Semana 5. 27.2.2026
Se ha fijado la fecha para la firma de la compraventa para el 20.3.2026
Se recibió el dossier con el diseño integral de la reforma de parte del arquitecto.
Se recibió un presupuesto completo de la obra, para con esa base solicitar cotizaciones a los reformistas.



Semana 6. 6.3.2026
Se actualizo la fecha para la firma para el 19.3.2026
Se entrega Dossier completo de la reforma.
Semana 7. 13.3.2026
Se solicitan cotizaciones a reformistas.
Se envian documentos a notaria para la creación de escritura.
Pretendemos iniciar obra la semana del 23 de Marzo
Semana 8. 20.3.2026
Firma de la compra venta 19.3.2026
Se visito la propiedad después de la firma
Y se revisaron las propuestas presentadas por dos contratistas.
Se selecciono la mejor propuesta por tiempo y condiciones.
Se negocio el contrato y una reforma en 8 semanas con primera semana el 30.3.
Se espera iniciar el 24.3 para ganar unos días de margen.
Semana 9. 27.3.2026
Se firmo contrato con el reformista ARINDI y se iniciaron las obras con un plazo comprometido de 9 semanas. Fin de obra 23 de mayo 2026
Se inicio con los derribos.


Semanas 10 y 11 Avance en la reforma 9.4.2026
La reforma avanza rápidamente, ya se terminaron los derribos y se están preparando las instalaciones.
Se acordó asignar un espacio para incluir una lavadora que la da funcionalidad adicional al estudio
La idea es que quede oculta en un pequeño mueble destinado a la televisión, que se encuentra en la pared del baño.
Semana 12. 17.4.2026 Continua la reforma
Semana 13. 24.4.2026
La reforma continua. Se han terminado de realizar las instalaciones.
Se entra a la etapa de finalización de los acabados.
La reforma se encuentra en tiempo para finalizar antes del 31 de mayo tal como marca nuestro contrato.

Semana 14. 30.4.2026
Se entre en la etapa final de la reforma
01
Se cambiará la puerta, fuera de lo previsto
02
Inspección a la obra. Se requiere la ventana y la cocina que se entrega el 30. abril
03
Los pisos han sido colocados

